კონტაქტი
ბათუმი. ბარათაშვილის #22
(+995)557 27 70 70
argogroup11@gmail.com
მთავარი
პროექტები
მიმდინარე
დასრულებული
სამომავლო
პარტნიორები
სერვისები
კონტაქტი
01
01
01
ბინის არჩევა |
(+995)557 27 70 70
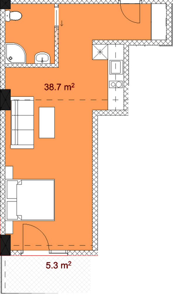
საერთო ფართი.: 44.0 m²
საცხოვრებელი.: 38.7 m²
აივანი.: 5.3 m²
ბინის 360 ტური
ბინის გეგმარება
მიმდინარე პროექტი |
მიმდინარე პროექტი
ბათუმი. ბარათაშვილის #22
ბინა 44 m²
ბინა 44.7 m²
ბინა 48.2 m²
ბინა 52.2 m²
ბინა 58.3 m²
ბინა 59.2 m²
ბინა 62.2 m²